De Driesprong 29
winkelruimte Te huur

5241 TJ ROSMALEN

De Driesprong 29

prijs op aanvraag

Bekijk alle foto's (11)
Soort Winkelruimte
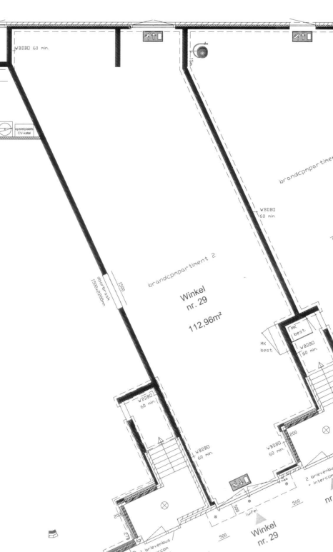
Oppervlakte 113 m²

Omschrijving De Driesprong 29

Locatie
Onderhavige commerciële ruimte maakt deel uit van het hoofdwinkelgebied van Rosmalen en ligt om de hoek van het sfeervolle horecaplein. In de directe omgeving is een breed aanbod aan horecagelegenheden te vinden, variërend van gevestigde namen zoals Restaurant 't Vosje en Eetcafé De Likkepot, tot nieuwere concepten zoals Bistrobar Jofel en De Villa Rosmalen. Daarnaast zijn in de nabije omgeving diverse landelijke en regionale winkelketens gevestigd, waaronder KiK, Jola, HEMA, Primera en Only for Men, aangevuld met tal van andere bekende formules.

Object
De commerciële ruimte omvat circa 113 m² op de begane grond en kenmerkt zich door een open, flexibel in te delen ruimte. Aan de achterzijde bevinden zich een pantry en een toilet. Tevens beschikt de ruimte over een praktische achteringang, bijvoorbeeld geschikt voor bevoorrading en/of als separate personeelsentree.

De combinatie van een goede zichtlocatie, efficiënte indeling en functionele logistieke mogelijkheden maakt dit object uitermate geschikt voor diverse ondernemingen.

Opleveringsniveau
Het gehuurde wordt opgeleverd in de staat waarin het zich per de ingangsdatum van het huurcontract bevindt. Hierbij wordt enkel het casco door verhuurder verhuurd.

Momenteel bevinden zich o.a. de volgende voorzieningen in het gehuurde:
- verlichtingsarmaturen;
- vloerafwerking;
- pantry;
- toiletgroep;
- luchtgordijn.

Parkeren
Op loopafstand van de commerciële ruimte zijn diverse parkeermogelijkheden beschikbaar. Zo kan er onder andere gratis worden geparkeerd in de blauwe zones aan de Hoogstraat en de Raadhuisstraat. Daarnaast is er parkeerterrein Markt, op minder dan 100 meter afstand, waar eveneens gratis kan worden geparkeerd.

Bestemming
Onderhavige onroerende zaak valt onder de bestemming 'Centrum' en is onder andere geschikt voor detailhandel, dienstverlening, kantoren, maatschappelijke voorzieningen en publiek verzorgend ambacht'. Tevens is horeca op deze locatie toegestaan. Voor meer informatie over gebruiksmogelijkheden en regelgeving kunt u terecht bij de Gemeente 's-Hertogenbosch, waar Rosmalen onder valt.
Lees meer

Kenmerken De Driesprong 29

Overdracht

Huurprijs winkelruimte
prijs op aanvraag
Status
beschikbaar
Aanvaarding
in overleg

Bouw

Hoofdbestemming
winkelruimte
Bouwperiode
vanaf 1981 tm 1990

Winkelruimte

Publieksgerichte dienstverlening
Ja
Detailhandel
Ja
Showroom
Ja
Oppervlakte
113 m²
In units vanaf
113 m²
Verkoopvloer oppervlakte
113 m²
Verdiepingen
1
Horeca toegestaan
Ja
Welstandsklasse type
B1

Buitenruimte

Ligging
Winkelgebied stadscentrum
Lees meer