Industrieweg 7
Bedrijfshal Te koop

5731 HP MIERLO

Industrieweg 7

€ 1.395.000,- k.k.

Bekijk alle foto's (67)
Soort Bedrijfshal
Bouwjaar 2010
Oppervlakte 1.508 m²

Omschrijving Industrieweg 7

Locatie
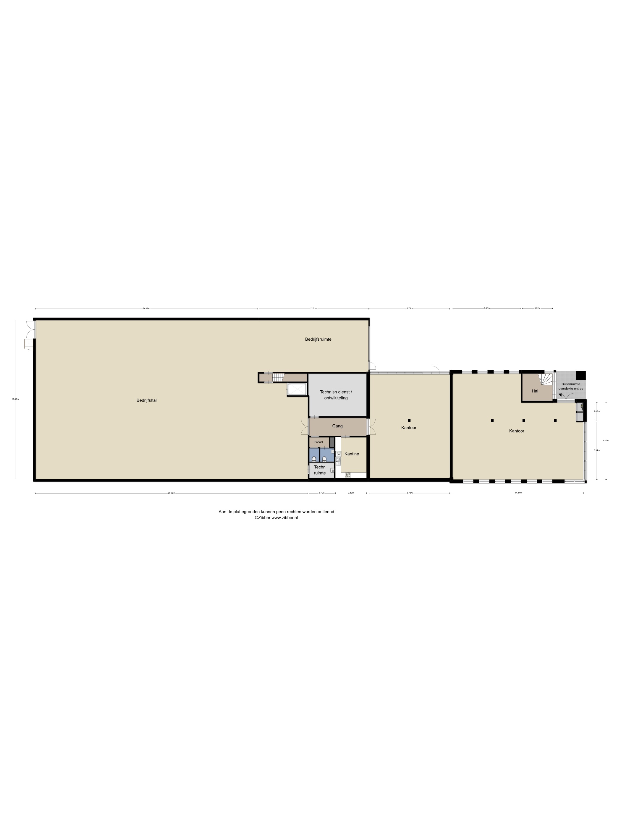
Aan de Industrieweg 7 in Mierlo, op een representatief en goed georganiseerd bedrijventerrein, bevindt zich een uiterst modern en zeer compleet bedrijfsobject dat zowel wonen als ondernemen combineert. Het geheel bestaat uit een luxe afgewerkte bedrijfswoning (appartement) van circa 200 m², een verhuurd kantoor van circa 148 m² en een royale bedrijfshal van circa 1.270 m², verdeeld over twee verdiepingen. Daarnaast is er een extra kantoorruimte van circa 90 m² die separaat verhuurd kan worden. Het geheel ligt op een perceel van 1.503 m², op een uitstekend bereikbaar bedrijventerrein tussen Helmond en Eindhoven.

De bereikbaarheid is uitstekend, binnen enkele minuten rijdt u richting Helmond, Eindhoven, Nuenen en de A270/A67. Het terrein kent een mix van ambachtelijke bedrijven, automotive, logistiek en kleinschalige productie, waardoor het zeer geschikt is voor ondernemers die maximale flexibiliteit zoeken.

Bedrijfswoning/appartement
De bedrijfswoning betreft een luxe afgewerkt appartement met een totale gebruiksoppervlakte van circa 200 m², uitgevoerd met een moderne uitstraling en hoogwaardige materialen. De woning kenmerkt zich door een ruim opgezette en praktische indeling, gecombineerd met een hoog afwerkingsniveau en veel aandacht voor comfort en licht. Dankzij de grote raampartijen beschikt het appartement over een zeer royale natuurlijke lichtinval, wat bijdraagt aan een open en ruimtelijk gevoel.

De woning omvat onder andere een zeer ruim opgezette woonkamer, die zich uitstekend leent voor zowel ontspanning als representatief gebruik. De hoogwaardige keuken is voorzien van moderne inbouwapparatuur. De woning beschikt daarnaast over een luxe badkamer met een lichtkoepel, wat zorgt voor extra daglicht en een exclusieve en luxueuze uitstraling. Verder zijn er drie volwaardige slaapkamers aanwezig, geschikt als slaap-, werk- of logeerkamer, evenals een ruime speelkamer die multifunctioneel kan worden ingezet.

Aan comfortvoorzieningen is eveneens geen gebrek: de woning is uitgerust met airconditioning en hoogwaardig sanitair. Als buitenruimte beschikt het appartement over een royaal en zonnig dakterras/balkon van circa 43 m², ideaal voor ontspanning en buitenverblijf.

Bedrijfsruimte
De bedrijfsruimte betreft een moderne en multifunctionele bedrijfsruimte, verdeeld over twee volwaardige bouwlagen, met een totale gebruiksoppervlakte van circa 1.270 m². De bedrijfsruimte beschikt over een royale hoogte van circa 8 meter, wat zorgt voor uitstekende gebruiksmogelijkheden voor uiteenlopende bedrijfsactiviteiten, zoals opslag, productie, assemblage, logistiek of lichte industriële toepassingen. Dankzij de solide vloerconstructie, ruime vloerbelasting en efficiënte indeling is de hal flexibel in te richten en breed inzetbaar.

Aan de voorzijde is een grote overheaddeur aanwezig, waardoor laden en lossen eenvoudig en efficiënt kan plaatsvinden. Daarnaast is de bedrijfshal uitgerust met zowel een autolift als een separate goederenlift, waarmee beide bouwlagen optimaal bereikbaar zijn voor voertuigen, materialen en goederen.

Aansluitend aan de bedrijfshal bevindt zich een extra kantoorruimte met een oppervlakte van circa 90 m². Deze kantoorruimte is functioneel ingericht en beschikt over een zelfstandige ontsluiting. In het verleden is deze ruimte separaat verhuurd geweest en zij leent zich ook nu uitstekend voor afzonderlijke verhuur, bijvoorbeeld als zelfstandig kantoor, ondersteunende bedrijfsruimte.

Kantoorruimte
Aan de voorzijde van het pand bevindt zich een volledig afgewerkte en zelfstandige kantoorruimte van circa 148 m², voorzien van eigen entree en moderne voorzieningen. Deze ruimte is verhuurd, wat direct zorgt voor stabiele inkomsten. De huurovereenkomst is op aanvraag beschikbaar.

Het pand is gebouwd in 2010 en verkeert in hoogwaardige staat. Dankzij 62 zonnepanelen en diverse moderne installaties is het energiezuinig en klaar voor de toekomst.
Lees meer

Kenmerken Industrieweg 7

Overdracht

Vraagprijs
€ 1.395.000,- k.k.
Status
verkocht onder voorbehoud
Aanvaarding
in overleg

Bouw

Hoofdbestemming
bedrijfsruimte
Bouwjaar
2010
Bouwperiode
vanaf 2001 tm 2010

Oppervlakten en inhoud

Perceeloppervlakte
1.503 m²

Bedrijfshal

Oppervlakte
1.270 m²
Voorzieningen
Overheaddeuren, krachtstroom, betonvloer, heater, toilet, pantry

Kantoorruimte

Oppervlakte
238 m²
Luchtbehandelingen
Airco, mechanische ventilatie
Voorzieningen
Inbouwarmaturen, te openen ramen
Verdiepingen
1

Terrein

Buitenruimte

Ligging
Bedrijventerrein
Lees meer