Hinthamerstraat 33
winkelruimte Te huur

5211 MD 'S-Hertogenbosch

Hinthamerstraat 33

prijs op aanvraag

Bekijk alle foto's (6)
Soort Winkelruimte
Bouwjaar 1450
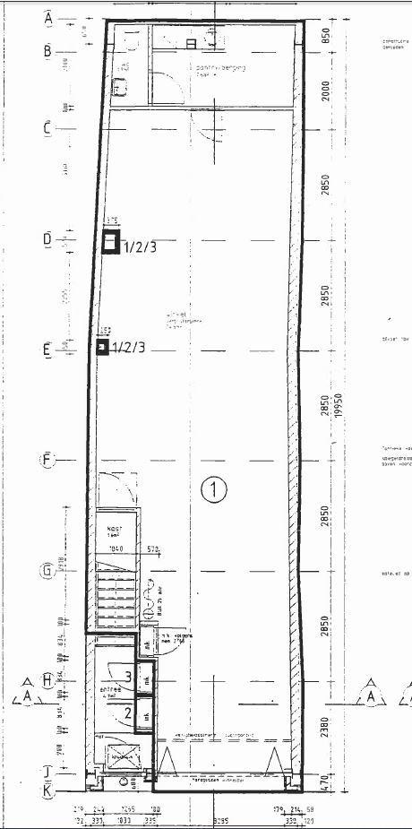
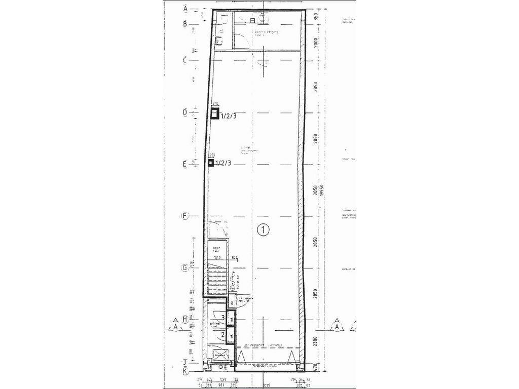
Oppervlakte 90 m²

Omschrijving Hinthamerstraat 33

Locatie
Onderhavige winkelruimte is gelegen aan de Hinthamerstraat, een van de meest levendige en druk bezochte winkelstraten van Den Bosch. Omdat de Hinthamerstraat rechtstreeks aansluit op de Bossche Markt, is de locatie extra gunstig te noemen want het object ligt op slechts 50 meter van de Markt, het hart van de binnenstad. Er is hier een diversiteit aan landelijke formules te vinden zoals Kruidvat, Amac, Specsavers, Bakkertje Bol, ICI Paris XL en een filiaal van Zeeman.

Object
De winkelruimte is circa 90 m² groot en volledig gesitueerd op de begane grond. Achterin zijn een pantry en berging gesitueerd.

Opleveringsniveau
Het gehuurde wordt opgeleverd in de staat waarin het zich per de ingangsdatum van het huurcontract bevindt.

Parkeren
De locatie is goed bereikbaar en er zijn ruim voldoende (betaalde) parkeermogelijkheden in de nabije omgeving, zoals in parkeergarages St. Josephstraat en/of Wolvenhoek. In de St. Josephstraat, waar de Hinthamerstraat op uitkomt, bevindt zich tevens een bushalte, die een rechtstreekse verbinding heeft met het Centraal Station, zodat ook de bereikbaarheid met het openbaar vervoer goed geborgd is.

Aanvaarding
In overleg.
Lees meer

Kenmerken Hinthamerstraat 33

Overdracht

Huurprijs winkelruimte
prijs op aanvraag
Status
beschikbaar
Aanvaarding
in overleg

Bouw

Hoofdbestemming
winkelruimte
Bouwjaar
1450
Bouwperiode
tot 1906

Winkelruimte

Detailhandel
Ja
Showroom
Ja
Oppervlakte
90 m²
In units vanaf
90 m²
Verkoopvloer oppervlakte
90 m²
Verdiepingen
1
Frontbreedte
600
Welstandsklasse type
A1

Buitenruimte

Ligging
Winkelgebied stadscentrum
Lees meer