Hoofdstraat 21
winkelruimte Te huur

5461 JC Veghel

Hoofdstraat 21

€ 175,- p/m² p/j

Bekijk alle foto's (22)
Soort Winkelruimte
Bouwjaar 1993
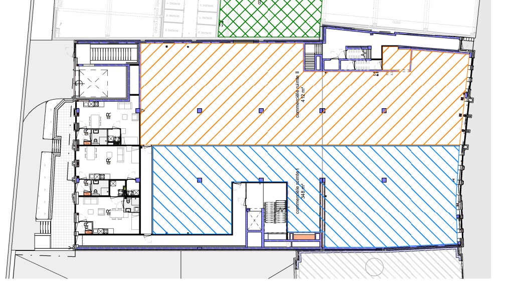
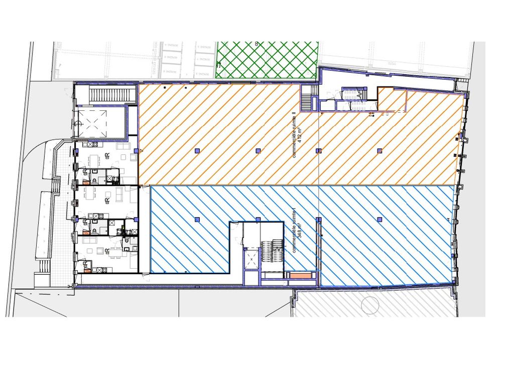
Oppervlakte 410 m²

Omschrijving Hoofdstraat 21

NIEUWBOUW WINKELRUIMTE (A++) GELEGEN AAN DE BELANGRIJKSTE WINKELSTRAAT VAN VEGHEL

Algemeen
Veghel heeft een rijke historie die teruggaat tot de middeleeuwen en heeft zich in de loop der tijd ontwikkeld tot een plaats met een, tot op heden, belangrijke regionale functie. Veghel is vooral bekend om zijn sterke industriële en agrarische achtergrond, waarbij bedrijven zoals Friesland-Campina en Mars een grote rol hebben gespeeld in de economische groei van de regio.
Met ongeveer 33.000 inwoners is Veghel een levendige plaats in de gemeente Meijerijstad met een goede mix van stedelijke voorzieningen en landelijke rust. Het centrum biedt een breed scala aan winkels, restaurants en culturele voorzieningen. Deze middelgrote stad is erg goed bereikbaar via de A50 en N279, wat Veghel verbindt met de grotere steden als Eindhoven, 's-Hertogenbosch en Nijmegen.

Locatie
De Hoofdstraat in Veghel is de belangrijkste winkelstraat in het centrum van deze Brabantse plaats. Het is een levendige straat waar je veel winkels, boetieks, cafés en restaurants vindt. De straat heeft een centrale rol in het dagelijks leven van Veghel, zowel op commercieel als sociaal vlak. Mede door de regionale functie heeft Veghel een mooie mix van landelijke ketens en lokale ondernemers. Qua architectuur wisselen historische en moderne gebouwen in de binnenstad elkaar af, wat bijdraagt aan een charmante, maar ook moderne sfeer.

Object
De commerciële ruimte van circa 410 m² wordt in casco+ staat opgeleverd. De ruimte is voorzien van aluminium puien met HR++ dubbele beglazing en een entreepartij met dubbele glazen toegangsdeuren. Daarnaast beschikt het pand over een pantry, toilet, invalidentoilet en heeft het een riante frontbreedte van circa 11 meter.
De ruimte is tevens via een achteringang bereikbaar, wat geschikt is voor bevoorrading of toegang voor personeel. Verder is het pand voorzien van een meterkast met water- en elektriciteitsaansluiting, een luchtbehandelingssysteem, een WTW-installatie, zonnepanelen en vier plafond-splitairco-units. De winkel beschikt over energielabel A++.

Voor het gebruik van de opbrengst van de zonnepanelen wordt een maandelijks bedrag aan huurder in rekening gebracht van € 275 te vermeerderen met BTW.

Opleveringsniveau
• casco+ oplevering;
• 4 splitairco-units;
• energielabel A++;
• HR++ beglazing;
• WTW-systeem;
• luchtbehandeling;
• pantry en (invalide)toilet;
• gasloos;
• glasvezel aansluiting;
• 11 meter frontbreedte;
• 20 zonnepanelen.

Parkeren
Openbare parkeervoorziening gereguleerd middels een blauwe kaart.
Lees meer

Kenmerken Hoofdstraat 21

Overdracht

Huurprijs winkelruimte
€ 175,- p/m² p/j
Status
beschikbaar
Aanvaarding
in overleg
Servicekosten
€ 275,- p/m

Bouw

Hoofdbestemming
winkelruimte
Bouwjaar
1993
Bouwperiode
vanaf 1991 tm 2000

Oppervlakten en inhoud

Perceeloppervlakte
1.133 m²

Winkelruimte

Publieksgerichte dienstverlening
Ja
Detailhandel
Ja
Showroom
Ja
Oppervlakte
410 m²
In units vanaf
410 m²
Verkoopvloer oppervlakte
410 m²
Verdiepingen
1
Frontbreedte
1100
Welstandsklasse type
A2

Buitenruimte

Ligging
Winkelgebied stadscentrum
Lees meer