Dorpsstraat 56B
kantoorruimte Te huur

5241 ED Rosmalen

Dorpsstraat 56B

€ 1.950,- p/m

Bekijk alle foto's (14)
Soort Kantoorruimte
Bouwjaar 1993
Oppervlakte 180 m²

Omschrijving Dorpsstraat 56B

Locatie
Onderhavig object is gelegen aan de Dorpsstraat in Rosmalen, aan de rand van het centrum. De directe omgeving kenmerkt zich door de dorpskern van Rosmalen, gecombineerd met woningen en kantoren. Zowel het Centraal Station als het snelwegennet bevinden zich op korte afstand. Dit in combinatie met het riante achtergelegen parkeerterrein maakt de bereikbaarheid uitstekend!

Object & oppervlakte
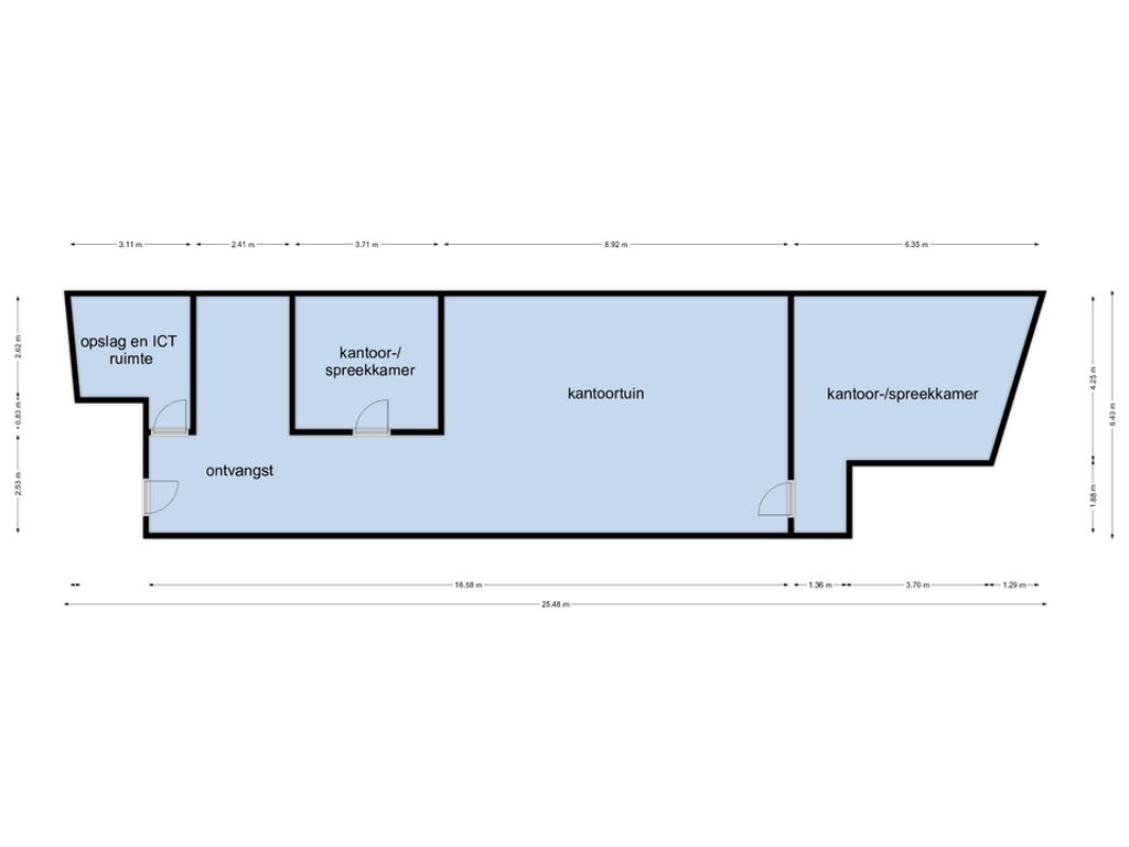
De voor verhuur beschikbare kantoorruimte is gelegen op de eerste verdieping. De gemeenschappelijke entree op de begane grond geeft toegang tot het gebouw. De verdieping is bereikbaar middels een lift en trap. De oppervlakte bedraagt circa 180 m². De indeling bestaat uit een ontvangst, open kantoortuin, twee spreek-/kantoorkamers, een opslag- en ICT-ruimte, keuken en dubbele toiletgroep. De keuken en het toilet zijn gedeeld met een andere huurder op de verdieping. Zowel de hoge attentiewaarde door de hoekligging alsmede de indeling van de ruimte, maakt dit geschikt voor een tal aan ondernemers die op zoek zijn naar een representatieve ruimte in het centrum van Rosmalen.

Opleveringsniveau
Het kantoor wordt in de huidige staat opgeleverd, onder andere voorzien van:
- systeemplafond met verlichting;
- wandafwerking (stuc en scheidingswanden);
- vloerafwerking (linoleum en tapijt);
- kabelgoten voorzien van elektra en databekabeling;
- pantry voorzien van vaatwasser;
- raambekleding;
- airconditioning;
- alarmsysteem.

Parkeren
In de nabije omgeving zijn ruim voldoende gratis parkeermogelijkheden.
Lees meer

Kenmerken Dorpsstraat 56B

Overdracht

Huurprijs kantoorruimte
€ 1.950,- p/m
Status
beschikbaar
Aanvaarding
in overleg
Servicekosten
€ 400,- p/m

Bouw

Hoofdbestemming
kantoorruimte
Bouwjaar
1993
Bouwperiode
vanaf 1991 tm 2000

Oppervlakten en inhoud

Perceeloppervlakte
180 m²

Kantoorruimte

Oppervlakte
180 m²
Luchtbehandelingen
Airco, mechanische ventilatie
Verdiepingen
1
Voorzieningen
Inbouwarmaturen, liften, te openen ramen, kabelgoten, systeemplafond, toilet, pantry, verwarming, kamerindeling

Buitenruimte

Ligging
Winkelgebied stadscentrum
Lees meer