Weerdskampweg 8
Bedrijfshal Te huur

5222 BA 'S-Hertogenbosch

Weerdskampweg 8

€ 2.900,- p/m

Bekijk alle foto's (9)
Soort Bedrijfshal
Bouwjaar 1970
Oppervlakte 675 m²

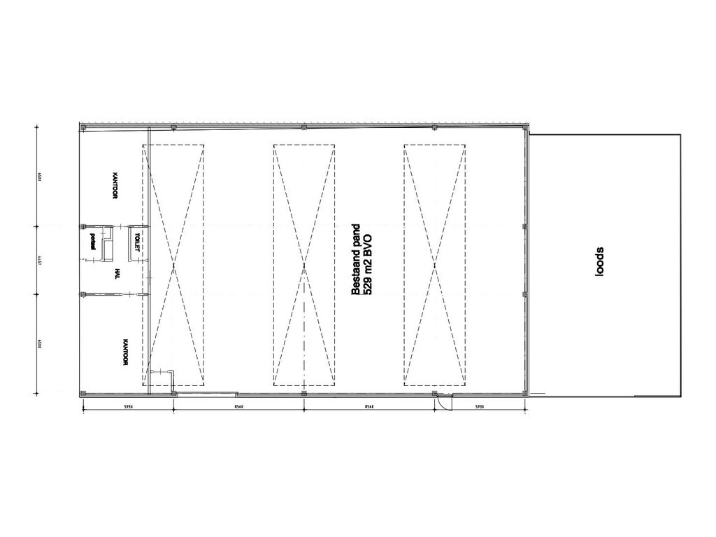
Omschrijving Weerdskampweg 8

Locatie
Onderhavig object is gelegen op bedrijventerrein De Rietvelden, op steenworp afstand van de doorgaande Rietveldenweg, de grootste verkeersader van het bedrijventerrein. Het object is gunstig gelegen aan de A59 en op relatief korte afstand van het centrum van ’s-Hertogenbosch. Tevens zijn er bushaltes aan de Rietveldenweg aanwezig.

Object
Het betreft een bedrijfscomplex met veel lichtinval en kantoren/showroom aan de straatzijde. Het object is zeer geschikt voor assemblage- en productiedoeleinden. Ondanks de geringe hoogte (circa 4 meter) is het ook geschikt als magazijn.

De oppervlakte is als volgt verdeeld: kantoorruimte/showroom van circa 75 m² met daarachter de bedrijfsruimte van circa 430 m². De, achter op het terrein geplaatste (niet geïsoleerde), stalen loods heeft een oppervlakte van circa 170 m². Het dak is onlangs geheel geïsoleerd waarbij de lichtstraten eveneens zijn voorzien van geïsoleerde beglazing.

Opleveringsniveau
Het huidige opleveringsniveau van de kantoorruimte is als volgt:
- systeemplafond met armaturen;
- toilet;
- nieuwe pantry met onderkasten;
- kabelgoten ten behoeve van elektra-, data- en telecommunicatie;
- vernieuwde c.v.-installatie voorzien van radiatoren.

De bedrijfsruimte wordt opgeleverd inclusief onder andere:
- betonvloer;
- TL-opbouwarmaturen;
- vernieuwde c.v.-installatie met drie heaters;
- elektrisch bedienbare overheaddeur;
- daklichten;
- brandblusvoorzieningen;
- vrije hoogte van circa 4,0 meter.

Buitenterrein met klinkerbestrating en een afsluitbare poort.

Parkeren
Er zijn parkeermogelijkheden aan de voor- en achterzijde van het object.

Aanvaarding
In overleg met verhuurder en huidige huurder. Uitgangspunt is begin 2026.
Lees meer

Kenmerken Weerdskampweg 8

Overdracht

Huurprijs bedrijfsruimte
€ 2.900,- p/m
Status
verhuurd onder voorbehoud
Aanvaarding
in overleg

Bouw

Hoofdbestemming
bedrijfsruimte
Bouwjaar
1970
Bouwperiode
vanaf 1960 tm 1970

Oppervlakten en inhoud

Perceeloppervlakte
1.236 m²

Bedrijfshal

Oppervlakte
600 m²

Kantoorruimte

Oppervlakte
75 m²
Verdiepingen
1

Terrein

Buitenruimte

Ligging
Bedrijventerrein
Lees meer